Servisované kancelárie
Naše proworking servisované kancelárske priestory sú pripravené pre klientov, ktorí hľadajú nielen miesto pre prácu, ale aj reprezentatívne prostredie a prístup
k individuálnym potrebám. Ponúkame exkluzivitu, pohodlie
a kvalitné doplnkové služby.
Základné služby, poskytované
so servisovanými kancelárskymi priestormi
Základné služby
- vlastný efektívny priestor
- zdieľaný komunitný priestor
- spoločný priestor
- spotreba médií a energií
- prevádzkové náklady
- internetové pripojenie
- denné upratovanie
- parkovacie miesta pre návštevy
- elektronické zabezpečenie vstupu, čipové karty
- sídlo spoločnosti (+2)
- využitie zasadačiek (prvé dva mesiace zdarma)
- využitie zasadačiek v rozsahu 5h / mesiac zdarma
- multifunkčná tlačiareň (200 str. / mesiac)
Vybavenie
- vybavená kuchynka
- základné občerstvenie
- vybavený office kútik
- hygienické potreby
Office manažment
- manažment návštev
- poštový manažment
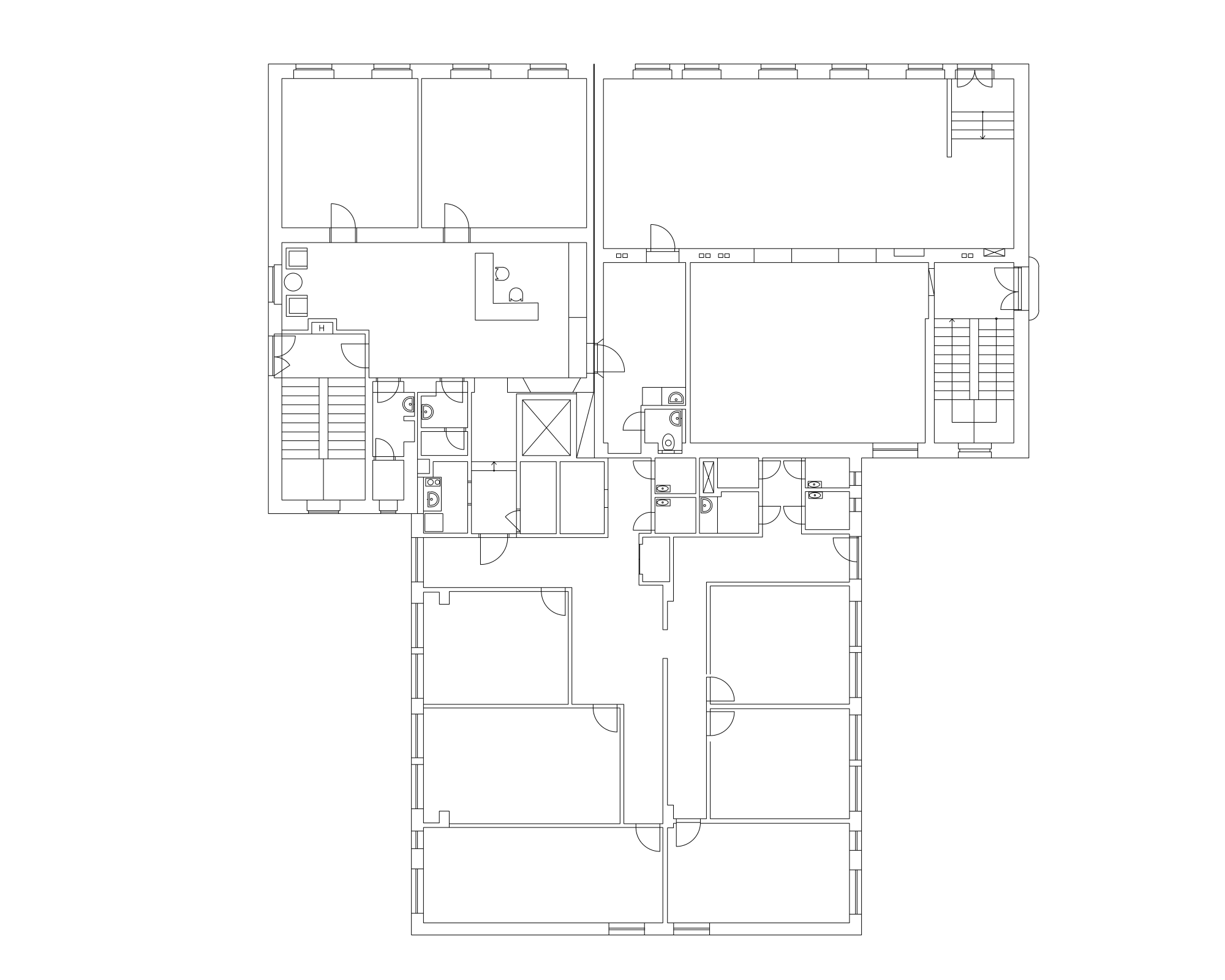
Pôdorys 1NP

Office D 1.1
OBSADENÝ
Proworking servisovaný kancelársky pristor na prízemí budovy.

Office D 1.2
DOSTUPNÝ IHNEĎ
Proworking servisovaný kancelársky pristor na prízemí budovy. Počet osôb 4.

Office D 1.3
DOSTUPNÝ IHNEĎ
Proworking servisovaný kancelársky pristor na prízemí budovy. Počet osôb 4.

Office D 1.4
DOSTUPNÝ IHNEĎ
Proworking servisovaný kancelársky pristor na prízemí budovy. Počet osôb 3.

Office D 1.5
OBSADENÝ
Proworking servisovaný kancelársky pristor na prízemí budovy. Počet osôb 3.

Kancelária D 1.6
DOSTUPNÝ IHNEĎ
Proworking servisovaný kancelársky pristor na prízemí budovy. Počet osôb 4.
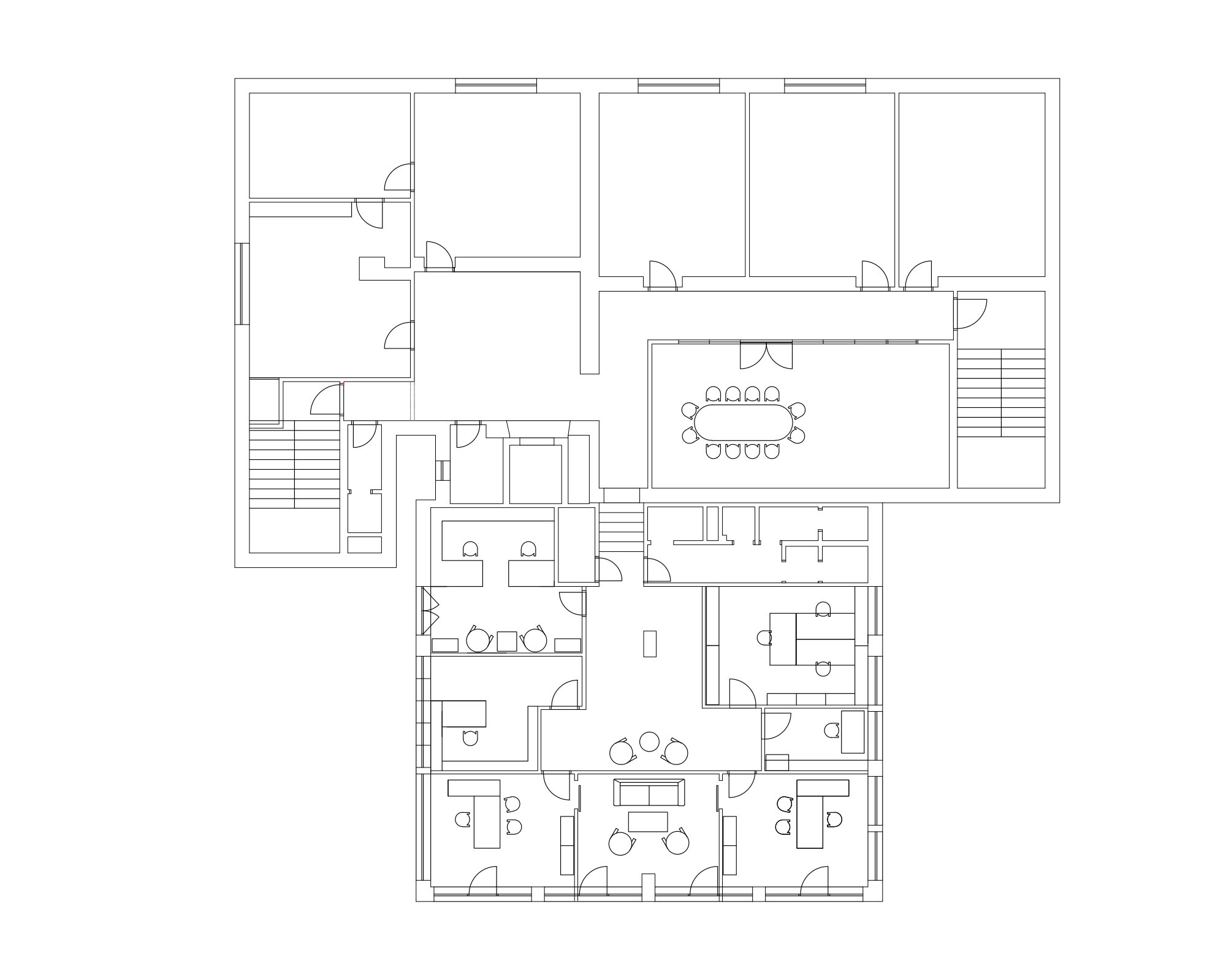
Pôdorys 2NP

Office D 2.1
OBSADENÝ
proworking servisovaný kancelársky pristor na 1. poschodí budovy, max. počet osôb 3

Office D 2.2
OBSADENÝ
proworking servisovaný kancelársky pristor na 1. poschodí budovy, max. počet osôb 3

Office D 2.3
OBSADENÝ
proworking servisovaný kancelársky pristor na 1. poschodí budovy, max. počet osôb 3

Office D 2.4
OBSADENÝ
proworking servisovaný kancelársky pristor na 1. poschodí budovy, max. počet osôb 3

Office D 2.5
OBSADENÝ
proworking servisovaný kancelársky pristor na 1. poschodí budovy, max. počet osôb 2

Office D 2.6
OBSADENÝ
proworking servisovaný kancelársky pristor na 1. poschodí budovy, max. počet osôb 2

Office D 2.7
OBSADENÝ
proworking servisovaný kancelársky pristor na 1. poschodí budovy, max. počet osôb 2

Office D 2.8
OBSADENÝ
proworking servisovaný kancelársky pristor na 1. poschodí budovy, max. počet osôb 3
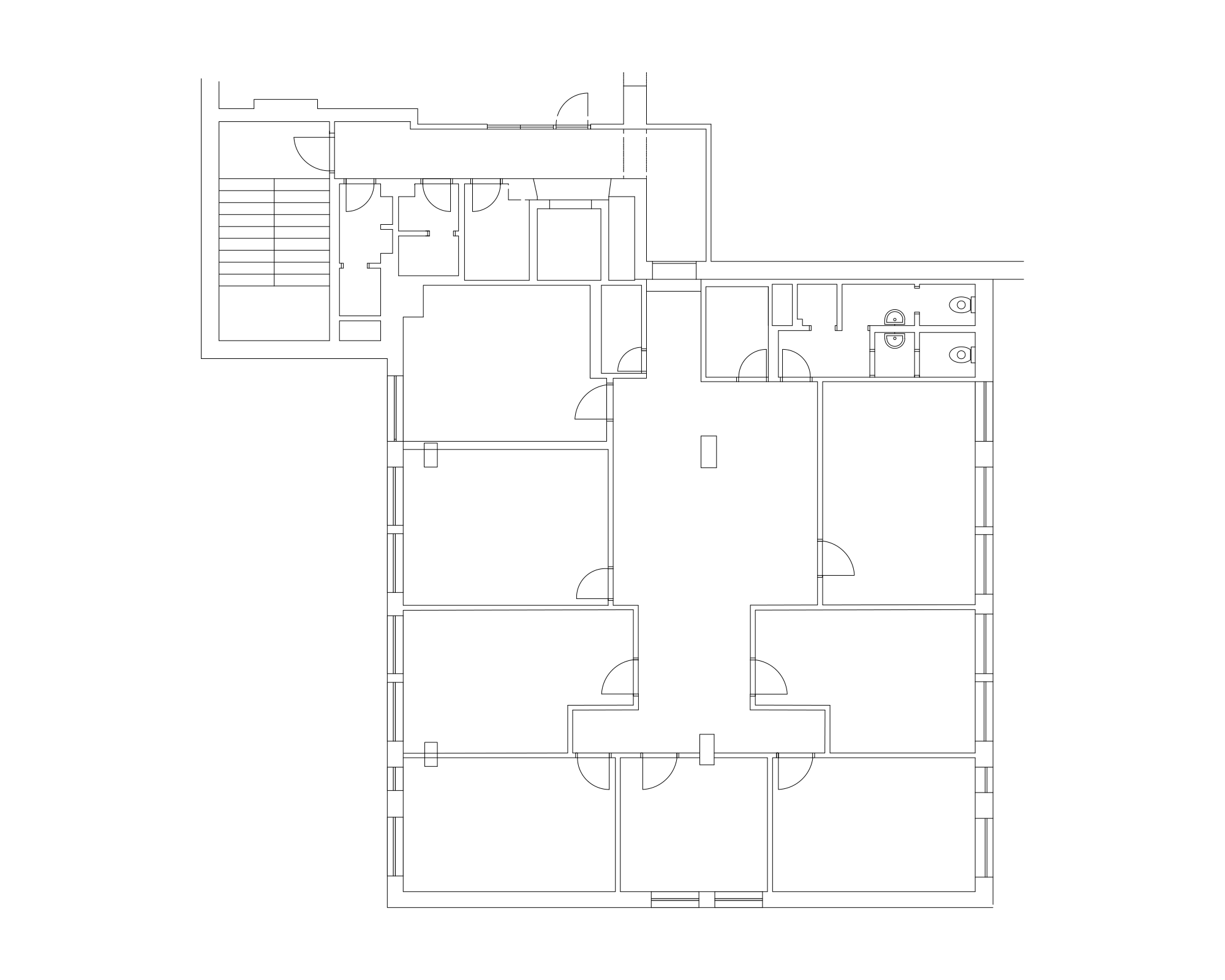
Pôdorys 4NP

Office U 4.1
DOSTUPNÝ IHNEĎ
proworking servisovaný kancelársky pristor na 3. poschodí budovy, max. počet osôb 2

Office U 4.1a
Prechodný / DOSTUPNÝ IHNEĎ
proworking servisovaný kancelársky pristor na 3. poschodí budovy, max. počet osôb 1

Office U 4.2
DOSTUPNÝ IHNEĎ
proworking servisovaný kancelársky pristor na 3. poschodí budovy, max. počet osôb 4

Office U 4.3
DOSTUPNÝ IHNEĎ
proworking servisovaný kancelársky pristor na 3. poschodí budovy, max. počet osôb 6

Office U 4.4
DOSTUPNÝ IHNEĎ
proworking servisovaný kancelársky pristor na 3. poschodí budovy, max. počet osôb 6

Office D U 4.5
OBSADENÝ
proworking servisovaný kancelársky pristor na 3. poschodí budovy, max. počet osôb 3

Office U 4.6
DOSTUPNÝ IHNEĎ
proworking servisovaný kancelársky pristor na 3. poschodí budovy, max. počet osôb 2
Lokalita
V blízkosti sa nachádzajú vládne budovy, reštaurácie, potraviny, lekáreň, trhovisko, bankomat, banka, pošta, notár, zastávka MHD, bratislavský mestský park.
železničnú stanicu
Bratislava
Bratislava — Praha
Bratislava — Žilina
Bratislavy
Viedeň
Kontaktná osoba
Napíšte nám
Šaty robia človeka, office robí business.
Štefanovičova 12
811 04 Bratislava
02 / 32 405 550
info@offizone.sk
© 2025 OFFIZONE / All rights reserved